Logo
Please visit our Sponsors
FAQs about Refugium Designs 12

Related Articles: Get Thee To A Refugium by Bob Fenner, Refugia: What They're For And How To Build Them by Forrest Phillips, Pressure Locking Sump Baffles; Welcome to the World of Versatility! By Joshua McMillen, Reef Systems, Reef Set-Up, Refugiums, Reef Filtration, Marine System PlumbingFish-Only Marine Set-up, FOWLR/Fish and Invertebrate Systems, Reef Systems, Coldwater Systems, Small Systems, Large Systems, Macroalgae

Related FAQs: Refugium Designs 1, Refugium Designs 2, Refugium Designs 3, Refugium Designs 4, Refugium Design 5, Refugium Design 6Refugium Design 7, Refugium Design 8, Refugium Design 9, Refugiums 10, Refugium Design 11, Refugium Design 13Refugiums 1, Refugiums 2, Refugiums 3, Refugiums 4, Refugiums 5, Refugiums 6, Refugiums 7Refugiums 8, Refugiums 9, Refugiums 10, Refugiums 11, Refugiums 12, Refugiums 13, Refugiums 14, Refugium Rationale, Construction, Hang-on types, Pumps/Circulation, Lighting, Operation, Algae, Livestock, DSBs, & Caulerpa, Marine System Plumbing, Holes & Drilling 1, Durso Standpipes, Overflow Boxes, Bubble Trouble, Plumbing NoiseMake Up Water Systems, Marine Aquarium Set-Up, Micro-Crustaceans, Amphipods, Copepods, MysidsAlgal Filtration in General, Mud Filtration 1

Refugium design  -11/27/2007 Hello Bob and Crew, <Hello, Scott V. here.> I'm reading Reef Invertebrates, loving it, and I'm thinking I need to rework my refugium with better baffles. <I'm sure Bob will be glad to hear (about the book).> As of now, I have a 60 gallon display with a 29 gallon refugium. A very small amount of tiny bubbles make it into the display. The display tank is a few months old and the refugium is just weeks old. I have some Chaeto in the refugium and some tiny tree corals. My tree coral just keeps growing and splitting so I thought why not through some in the refugium? <The pain of success.> I'm going to connect my newly set up 20 gallon to the refugium after it is past a quarantine timeframe. I also have a pair of fire gobies in the 20 that will be the sole inhabitants after it is connected. The display will have two ocellaris clowns, two Banggai cardinals, two stripped cleaner shrimp and possibly two neon gobies, with a clean up crew of snails and hermits. As for corals, the display has many impulse buys; no more impulse buys from this point forth. It has 14 different types of coral: SPS, soft, frogspawn, mushroom; although most tiny, $5-10 range. All totaled there is about 90 pounds live rock and 120 pounds 'live' sand, the wet bagged style. The display has ½ inch crushed coral and the 20 gallon tank has about an inch of the before mentioned sand, 20 pounds. <Keep adequate water flow and stir up the crushed coral every so often to prevent detritus settling.> All water quality has been great so far. Water flow from the refugium is about 300-360 to display and I'm estimating it will be about 60-80 to the 20 gallon, once attached. I attached plans for my new refugium design and pictures of the setup so far as a reference. I guess I was just wondering if you would do anything different without adding much to what I have now. Thanks a ton! Jesse <I would personally skip the rubble in the intake/return chambers. It is too hard to keep adequately dispersed water flow to keep the rubble from collecting detritus. Other than that it looks like a solid plan. You are welcome. Have fun with it, Scott V.>

Refugium design ideas   11/16/07 Hi, My name is Chris and I was thinking of intergrading <integrating?> a refugium into my current set up. I recently just purchased a used 65 gallon reef tank, with roughly 45lb of LR and various inhabitants. It is very well established and been up and running for 8 years. Its filtration consists of hang-on over flow box that feeds into a wet/dry filter and is pumped through a chiller. I think the filtration is due for an overhaul, and I plan on severely modifying it. Here are my ideas please let me know what you think. First I was thinking about adding a filter sock filled with carbon at the sumps intake and also placing a protein skimmer in the first compartment. I then would like to add a refugium, this would be placed next to the wet/dry and fed by a bulkhead. I was wanting to try something new that I have not been able to find any information on. <?!> I think it sounds like a good idea, that is dual compartment refugium. In the first compartment I would like a deep sand bed with plenty of LR and algae and in the second compartment I want to put a mud bed with mangroves and some macro algae. I really need help figuring out how things should flow to get the correct flow rates and to minimize the time the chiller needs to run. My question is about return pumps and flow, should it all flow through system and then back into the tank or should I use 2 pumps, or a tee and where to utilize the chiller. I will attach drawing of what I have now and what I would like incorporate. Any help or advice would be appreciated. Thank you for your time, Chris <Please read here: http://wetwebmedia.com/marsetupindex2.htm the second tray... and the Reef Invertebrates tome by Calfo and I is about one quarter devoted to refugiums. Bob Fenner> Sump design question... and reef set-up f' Hello, Apologies for what is probably a very simple question written in a very long way, but I feel I have gone round in complete circles after reading dozens and dozens of articles over the last few months. I have kept tropical and planted aquariums for pushing 20 years now and more recently been "keeping Nemo" for about 2 years (60 UK gal tank). Over these two years I have collected a number of items in preparation for the move to a big marine setup. <Good> I have now finally taken the plunge and purchased a Cleair Amazon- deep bow fronted aquarium http://www.cleairaquaticslimited.co.uk/acatalog/BSAC.html 180cm Length, 54cm Width, 98cm Height (I know this is tall but will loose 15cm to a DSB) of Aquarium & 57 cm Height of Cabinet 690 Litres (153 Gallons). <Wow! 3,000 Pounds? Almost a metre tall? ...two "side-filter chambers"? What are these? Overflow towers I hope> This has just been professionally drilled and had a weir fitted so that I can utilise a sump. <Ah, good> I am limited on the size of the sump due to the cabinet (again modified with a stainless steel frame so that I can remove the dividers). The opening will allow for a sump 120cm x 30 x 30. <Yikes... only a foot deep? Mmm, anyway to put it to t'other side of the cabinet, elsewhere? My fear is that the flow rate you may well want, meaning also the "transit volume"... i.e. the water in play, is going to make the "live" water depth here appreciably less... like less than half the 30 cm. depth... To prevent flooding in the inevitable events of pump shut-off...> My question is apart from the heaters, protein skimmer and auto top up system should I put in the sump ? <... a long possible list... DSB, macroalgae, mud in some part of less-flowing area... perhaps more test kit, probes, reactors...> The main tank will hold a huge amount of live rock (I already have a great deal of this but will purchase enough extra to create a complete rock back drop for the tank). In addition I have a large quantity of 1mm coral sand which I intend to run a 5"-6" deep sand base. <Good, among other things because it will be near-impossible to physically reach the bottom of this system...> After the articles I have read I question any value in putting a wet / dry area with bio balls ? <Could be, but I wouldn't> also I don't understand the value of a refugium where any life would be liquidised by the main pump returning the water to the main tank. <In actual practice/practise, this doesn't occur... much of the life gets through, what does get smooshed is still of value...> Unless this was used to grow algae that could be harvested. Lastly wouldn't using something like miracle mud be defunct as I will have DSB in the main tank? <Mmm, no... performs complimentary and separate/speeded up functions. Better to have both than one or the other> My current stock is a common clown, yellow tang, royal Dottyback, cleaner shrimp, 4 x peppermint shrimps, blue leg hermit / red leg hermit / Halloween hermit and a few snails. Lastly a good colony of pulsing xenia and good quantities of algae that grows faster than the tang can eat. Unfortunately I have a glass anemone problem so would like to add a copper band reasonably soon. Do you foresee any issues with this ? <All sorts... I would NOT do this... treat a system, rock that you intend, might use in a "reef"... too many residual toxicity possibilities... And NOT a useful way to eradicate pest anemones... See WWM re other techniques> Longer term I would add more inverts, small fish and maybe some soft corals that are not very light dependent as this system will run with T8's to start, moving to t5's at a later date. <Won't be useful at the bottom of this system... I'd be looking into MH...> Thanks for taking the time to help and probably save me a lot of time and effort changing the system at a later date. Once setup I will post a Photo and undoubtedly be trying to tap into your expertise again with regard to further stock. Regards Steve <For the sum of funds you have invested... I would do a bit more reading for now... taking good notes... Writing back with specific queries. Start here: http://wetwebmedia.com/marsetupindex2.htm the second tray down. Be chatting, Bob Fenner>  

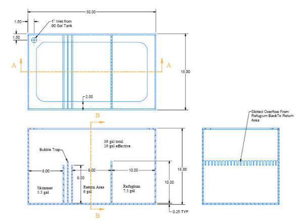
Reef System set-up 10/30/07 Dear Crew, Thank you for the wonderful wealth of knowledge you place at this site. I have been keeping a 55 gal FOWLR (have some star polyps as well) tank now for 3 years and I attribute the success to what I have learned reading at your site. <Scott V. with you tonight, thank you for the kind words Mark> I'm ready now to make a jump to a reef ready 90 gal (48x18x24) acrylic tank, which I am going to custom build Hickory cabinets for (have a neighbor who can make cabinets). I wish I could go bigger, but the 90 fits the space better. The wet dry on my 55 has insufficient capacity for the 90 and I'll need to upgrade this as well. Through my reading, I'm finding out that a wet dry may not be the best choice if I want to try keeping corals, although I've seen many systems that incorporate a wet dry in this application. <First, congratulations on the new tank. Reefs can work with wet/dry filter, but with sufficient live rock it is not needed and the bio media in the filter will just trap detritus that could otherwise be removed from the system.> The reading leads me to a sump/refugium design. I have the tools to make my own sump out of acrylic and I need some feedback on the design. I have attached a PDF file with a drawing of the design I have adapted from others I've found on the web. As with anything "new" I'm apprehensive about giving up the wet dry cold turkey! If you could look at the sump design and provide suggestions, I'd appreciate it. <Looks like a solid layout. The only thing I might suggest is in the refugium. You have the water level set at 10', you could raise it even higher to get more volume in it since you are actually bringing water in from the overflow rather than just making it a middle chamber that the water just flows over. It is scary leaving something you know behind, but your live rock will provide biofiltration.> I think I have enough capacity to handle a power outage, do you agree? <Should be, that is a good sized sump. Depends on how far below the tank's waterline your return runs. Putting it just below the water level and/or incorporating a siphon break will help with this.> I plan on sending water to the refugium by splitting water off from the tank drain and using a gate valve to regulate it. <This is how I would do it, raw water to the refugium and your skimmer wouldn't process the full flow each pass anyway.> Most of the tank water will of course go to the skimmer portion of the sump. I have read recommendations of splitting the return line and using some of that to feed the refugium but I didn't want to reduce the flow back to tank. This tank only has one 3/4" return...I know that two would be better...but it's what I've got. I plan on using the Mag 7 from my 55 to run this initially, but I don't believe this is sufficient circulation. Will the single overflow/ 1" drain handle anything bigger? <You could possibly split the return into two smaller returns after it runs through the ¾ bulkhead, but you will still need some other circulation through powerheads or a closed loop for a reef (10 X turnover being minimum). The 1' bulkhead will already be pretty much at its limit with the Mag 7.> Thanks, Mark Gustin <Thanks for writing Mark. Its great you are building your own sump, have fun with it Scott V.>

Re: Reef System set-up 10/30/07 Thanks Scott....makes me feel more at ease before I begin cutting acrylic...will make suggested height increase to refugium...maybe another inch or two....don't want too much water fall noise. <Glad to help. You have a good design for your sump/refugium, I understand the need to keep things quiet.> One more question...should I incorporate any mechanical filtration between the skimmer and the return area? I may use a stand pipe in the overflow and thus would have no mechanical filtration at all in this system. Thanks again! Mark Gustin <You could have a filter sock(s) on the overflow outputs or a filter pad tray (even possibly run a Polyfilter) between compartments. You do not necessarily need to use any mechanical filtration, a lot of people do and don't with great success. Without any mechanical filtration (other than your skimmer), the idea is to have enough flow to keep everything in mixed up until your skimmer or tank inhabitants process it. If you do choose to run something just be sure to clean quite frequently. I used to run a filter sock and clean it quite obsessively (daily). Not quite that urgent, but needs to be maintained. Happy building, Scott V.>

Refugium in upgrade...   10/25/07 Greetings WWM crew, <SG> I am getting ready to upgrade my 30 gal Fish/coral tank to a 75 gallon reef ready tank. I was lucky enough to find a free 55 gal tanks that I want to use for the sump/refugium. <Nice> The predrilled hole in the 75 gal is for a 1" bulkhead, <Mmmm> and I've already built the Durso standpipe as per the website. So I'm good there. I think in a week or so, I'll have a cabinet to set the tank on and I'll be ready to set it all up. In the mean time, I have been researching refugiums and sumps to try and figure out the best way to set mine up. <Good> I've also been reading a lot about DSBs. (this could be the answer to my nitrate problem) I have seen that a lot of people are on the fence about plenums. Most people who say they work, say they work for larger tanks. So, how big is a larger tank? <Gots me... my usual spiel... a couple hundred gallons> Unless it will make a big difference, I don't want to build one. I plan on having a 4" DSB in the display tank and in the refugium. <Sounds good> Is there anyway to lighten the cost on this? <Yes... look for bulk coral sand... like for kiddie sand boxes... Posted on WWM> can I use ½ non-live sand and ½ live sand? <Mmm, don't need to buy any "live sand"... can/will be made live with time, exposure to the live rock in the system... also posted...> Another concern I have is all the equipment that I want to move to the sump. I have two skimmers and a canister filter that I want to use (hopefully I can pull the canister filter out eventually) <I would> can I put them all in the same chamber, or should I have separate chambers. I've included a quick layout of how I want the sump to be laid out with equipment and such, would you mind looking it over, <Couldn't open... but could be my computer... am having troubles. Please send again as something other than a ..pdf file> maybe there are some things I still haven't thought about... Thanks for all your help, SG <Welcome. BF>

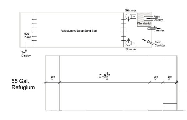
Don't tell me I was fortunate enough to get a reply from the great Bob Fenner... and then my attachment doesn't work, ugh! <Heee!> Sorry the PDF file didn't work. I have attached a JPG version. Thanks again! Shane <Doggone it (or a stronger oath for Billy.G and co.), this won't open either. And other attachments have this ding dang AM! Maybe send to my MSN acct.: fennerrobert@hotmail.com Cheers, BobF> <Does open on my intact laptop thank goodness. The overheads look good... will you have baffles to direct the water over/under... still provide a constant depth area for your skimmer? Bob Fenner>

If you mean dividers, then yes. The 55 gal is 18 high, if I remember right, and the dividers are 13' high. <Real good> One between the refugium and the skimmers. And one between the refugium and the water pump. I'm figuring that the water level in The skimmer section and the rfugium section will stay the same and the section with the return pump can be be lower. I took the divider layout from this website (http://jjgeisler.com/reeftank/55g_sump-refugium2.htm) but my pump and skimmers are submersible instead of external like the diagram shows Shane
<Thank you for this. BobF>

Refugium: fish and coral tanks... Whamba Jamba... too much incompatible life in too little dimension  10/2/07 Hello, <Good morrow> I have a 20 gallon reef and fish tank with: 1 maroon clownfish <... needs more room than this> 1 Rainford goby 1 scooter blenny <Needs more room for food production> 6 turbo snails 1 Kenya tree 1 Lobo brain Zoo polyps <Toxic... likely too so here with these other Cnidarians...> Green star coral 2 feather duster 20# live sand 20# live rock. It is hooked up to a 15 gallon sump/refugium that has a wet/dry with 4 L of matrix bio media and a Fluval 305. I also have a 50 gallon all fish tank with: 1 niger trigger <Needs more room...> 1 lunar wrasse 1 imperator angel <Much more...> 1 fire hawkfish 1 red sea sailfin tang <...> 50# live sand 50# live rock This tank is hooked up to a 29 gallon refugium with no wet/dry but it has a Fluval 404. <Am not a fan of canister filtration in these applications> Finally, my question is in your opinion would it be an option to hook both tanks up to the 29 gallon refugium with the wet/dry from the 15 gallon without effecting or endangering my coral tank or my fish tank. <Might be worthwhile to dilute... But really...> I have always heard that fish tanks and coral tanks should be kept separate, however with all of this filtration, a uv sterilizer and a protein skimmer I would think it might work. If this is possible it would decrease my energy used to sustain both tanks, but I don't want to jeopardize the health of my fish or corals. THANK YOU FOR YOUR TIME AND THOUGHTS. I look forward to hearing from you -Craig <What you need is to READ re the Systems and Compatibility of the life you list... What you have jammed into these little volumes is untenable... Won't work period. For what you list you NEED three-four times more space. Bob Fenner>

Refugium/Set-Up 9/27/07 Hey guys (and gals), <Hello> This is my third question in nearly as many days and for that I apologize (Bob, I swear I have your book on order). I finally had it all figured out it, until I started thinking about my sump. I am planning a separate sump/refugium setup and as I browsed through the many FAQs here regarding sumps it seems as if most people are using sumps as refugiums, necessitating baffled chambers in the sump. Since I am planning an independent sump, is there any reason my sump can't be one big chamber? If not, can you spell out what I will need for chambers? <Let's start by reading here, most if not all of your concerns will be found. http://www.wetwebmedia.com/refugium.htm> Also, my tank is acrylic, I am considering bulkhead fittings (rather than the current overflow box) for overflows and returns. <Good idea.> Is this difficult to accomplish? <No.> Could you give me a brief explanation on how it is done (or point me in the direction of a link)? <Go here. http://www.wetwebmedia.com/plumbingmarart.htm> Thanks again! <You're welcome. James (Salty Dog)>

75G FO choices. Thinking Small For Long-Term Stocking Success!   9/25/07 Hello all, <Hey there! Scott F. in today!> Pardon the length, but some history for you. After considering several options/budget issues and much research here), I am setting up a 75G with an in-sump refugium as a future home for a small group of more aggressive marine fish. The display will be lit by two standard wattage bulbs, and decorated with about 70lbs of base rock. Water will circulate through a 30G sump at about 450 gph (actual sump volume of about 15-20 gallons, including the 'fuge) and the refugium will have its own pump running around 150 gph through about a ten gallon volume which will hold a 5" DSB, some live rock, and macroalgae. <Sounds like a well-thought-out plan> The 'fuge will be lit by 36w of CF lights. All that said, my kids are "helping" with the setup and selection, and they are wanting a Yellow Tang, a Lunare Wrasse, and a Picasso Trigger as tankmates. My oldest loves the Harlequin Tusk, but not ready to spend that much just yet. <Yikes! Quite a mix for a 75 gallon tank! I hate to be a "buzz kill", but I wouldn't even mix those fishes in a 175 gallon aquarium. These fishes all require a lot of physical space, get quite large, and give off copious amounts of metabolic waste. Not really ideal in this situation, IMO.> My question is this...I see this stocking working for a max of up to two years' time, then having to trade, etc, which I don't like to do. <Neither do I. Often, the trades never happen, or the larger aquarium we intend to get doesn't come to pass so quickly. The fishes then languish in an aquarium that is too small for their long-term happiness.> I love either a Picasso Trigger or Harlequin Tusk as a single wet pet, but concerned about getting single fish syndrome. <Well, either of these fishes could do okay in a 75 for maybe a year, tops. Then a much larger system would be required.> Once I have this set up, I will seed the tank with cured live rock and some live sand, then wait for a good month before adding anything, testing the whole way. I really want this to be a one shot effort. <Your methodology sounds fine, but the stocking plan is really not a good one, IMO. It's best to stick with fishes that can live their entire lives in an aquarium of this size. Maybe you could fall in love with "smaller versions" of the fishes that you are considering. There are no truly smaller Triggers, but how about trying a smaller Hawkfish in place of the Trigger, a Halichoeres species wrasse in place of the Lunare, and a Pseudochromis for color? I really wouldn't keep a Tang of any sort in an aquarium less than 6 feet in length. They really need the room to roam! Think about smaller fishes...Trust me- it's a better long-term solution!> Thanks for a great site! <My pleasure.> PS-Can you give me the title of the newest book regarding refugiums? I can't find the reference I saw earlier.... Stan <Well, Stan, I'd consider Bob Fenner and Anthony Calfo's "Reef Invertebrates", which has a great section on refugia. Or, you could check out the latest volume of the Sprung and Delbeek's "The Reef Aquarium" series, which discusses them as well. HTH. Regards, Scott F.>

Refugium for Shop Setting-- 09/17/07 Hello Bob and Crew. We were wondering whether we could pick your well informed brains! We are in the process of fitting out our new shop premises, and want to run a refugium on our system. The system is 1000 gallons. What size should the refugium be, and what should the water flow be over it? Thanks so much Claire <Mmm, as big as possible... and perhaps not more than 5,6 times turnover the macro-algae part... You have read here: http://wetwebmedia.com/marsetupindex2.htm the second tray down? Bob Fenner>

Refugium... des.  -- 09/14/07 So the decision has been made to create a refugium underneath my 120gallon soon to be reef tank. The sump which houses a Phosban reactor, RS135 Euroreef Filter and heater had its size lowered in half form about 30G to about 20G, and a 36G separate refugium is going to be added. <Okay> The max footprint I can fit for the refugium is 15x21, and I was thinking about going 30" tall. I would be using a 6" DSB and some type of macro algae. I have been told I will most likely only end up with algae growth in the top 12"... so I would most likely end up with 12" of water in between algae and the DSB from what I've been told. I was thinking this extra 12" if nothing else will at least add to the volume of the system, and it can be used to temporarily house problematic creatures, and breed pods.... does this seem reasonable to you or would I be better suited with a shorter refugium, wider or longer is not an option. Thank you much. Josh <Mmm, well, the bigger the better... Will you be able to get into this 30 inch tall container though? Please read here: http://www.wetwebmedia.com/marsetupindex2.htm the second tray down. Bob Fenner>

Sump/Refugium, des.    8/24/07 Hi gang, <Rick> I think I'm at wit's end here - maybe I've just "bumped" my head too many times. I'm embarrassed to even ask this, but I've spent hours reading your site and I cannot "vision" the water mechanics of a sump/refugium. <Mmmm> Ok - raw water to first chamber - great place for protein skimming - elevation of this chamber is "SET" by continuous wall (skimmer needs this set water elevation). <Ok> Waterfall over set wall through a potential series of lower baffles into a refugium area . again the water level here is set based on another solid wall. Water again over the set wall possibly through a series of baffles into a pump area. Pumped back to tank. <One way...> Unless I'm missing something here, the evaporation of the entire system will "show" only in this last pump compartment. <Sure... with all in operation, as you detail it here...> tell me I'm missing something here or without an automatic top-up device, this thing could "dry-up" in less than a day? <Mmm, nah... if there's sufficient volume in the last area as you state...> Or can the sump be filled significantly higher than the wall separating the refugium and pump compartments? <Can be> Brain-dead in Edmonton <Draw all this out... should revive a few neurons! BobF>

Re: Sump/Refugium, des.    8/24/07 Thanks Bob, <Rick> I spent some time last night reviewing the refugium/sump sketch you have on the website ... with the 6" solid wall and then elevated wall/baffle between the 'fuge and pump compartment - this allows the water level in both areas to balance and essentially act as one volume. I'll modify this design slightly (higher wall between 'fuge and pump compartment - keeping in mind the volume I require above this level for water in transit) to accommodate DSB and macro. Neurons revitalized - for now. Rick <Heeee! When in doubt, rest, sleep... works wonders for me! BobF>  



Become a Sponsor Features:
Daily FAQs FW Daily FAQs SW Pix of the Day FW Pix of the Day New On WWM
Helpful Links Hobbyist Forum Calendars Admin Index Cover Images
Featured Sponsors: