Logo
Please visit our Sponsors
FAQs about Refugium Designs 7

Related Articles: Get Thee To A Refugium by Bob Fenner, Refugia: What They're For And How To Build Them by Forrest Phillips, RefugiumsPressure Locking Sump Baffles; Welcome to the World of Versatility! By Joshua McMillen, Reef Systems, Reef Set-Up, Refugiums, Reef Filtration, Marine System PlumbingFish-Only Marine Set-up, FOWLR/Fish and Invertebrate Systems, Reef Systems, Coldwater Systems, Small Systems, Large Systems, Macroalgae

Related FAQs: Refugium Designs 1, Refugium Designs 2, Refugium Designs 3, Refugium Designs 4, Refugium Design 5, Refugium Design 6Refugium Design 8, Refugium Design 9, Refugium Design 10Refugium Design 11, Refugium Design 12, Refugium Design 13 & Refugiums 1, Refugiums 2, Refugiums 3, Refugiums 4, Refugiums 5, Refugiums 6, Refugiums 7Refugiums 8, Refugiums 9, Refugiums 10, Refugiums 11, Refugiums 12, Refugiums 13, Refugiums 14, Refugium Rationale, Construction, Hang-on types, Pumps/Circulation, Lighting, Operation, Algae, Livestock, DSBs, & Caulerpa, Marine System Plumbing, Holes & Drilling 1, Durso Standpipes, Overflow Boxes, Bubble Trouble, Plumbing NoiseMake Up Water Systems, Marine Aquarium Set-Up, Micro-Crustaceans, Amphipods, Copepods, MysidsAlgal Filtration in General, Mud Filtration 1

All animals in your main display will benefit from the life/food generated in your refugium. Coradion chrysozonus (Cuvier 1831), the Goldengirdled Coralfish.

Re: Refugium Design/System Design/Maintenance - 10/07/06 Hi Eric, <<Hello John>> Thanks for your reply it confirmed that for the most part I am on the right track but if you could just clarify a few things I would appreciate it. <<Be happy to>> Is 1" of sand in the display tank too much?  I know if it's not at least 5"-6" DSB for NNR than it should be shallow, just want to make sure it's shallow enough. <<Should be fine...will likely get rearranged a bit by water flow/critters>> I understand that the actinics at 12" off the water will be strictly for aesthetic reasons but that's just what I intended them to be. <<I see>> With regard to the 400w MH, if they prove to be too much could I use some kind of diffuser to cut down on the intensity in the tank? <<Mmm, can't think of anything that would be of real use here.  If this proves to be an issue you can switch the bulbs to a higher Kelvin temperature (generally of less PAR), raise the height of the bulbs over the water, switch back to the 250s...>> Also could you recommend a DIY spot to look for me to build my own moon lights, I understand that the LED's need to be of a certain spectrum and if I do this down the road I want to make sure there would be some benefit not just look cool. <<Of a certain spectrum?...moonlights?  Have never heard that...and have my doubts as to its validity...more marketing-hype if you ask me...  Honestly, your "moonlight" can be as simple as a small low-wattage incandescent bulb left to burn 24/7.  But if you're set on making your own you can try OzReef ( http://ozreef.org/diy_plans/lighting/neon_moonlight.html), or buy a book from Amazon on DIY moonlights for about eight bucks ( http://www.amazon.com/DIY-Moon-Light-Make-Your/dp/0975311107)...or pull up one of the computer accessory sites and order yourself a low-voltage "cold-cathode" (neon) tube in your fave color for about twelve dollars plus shipping>> As far as the RO/DI top off being buffered I mentioned that it runs thru two 24" cylinders filled with crushed coral, I was led to believe that this would buffer the water. <<It will...but to what extent?  I would test the effluent re pH and alkalinity and assure these are being pushed back up to NSW levels>> I try to keep as automated as possible not only for ease but mainly for consistency in the aquarium. <<As do I>> If this is not adequate buffering can you recommend something fairly automated? <<Mmm, no...will require "manual" additions of a buffering compound to the RO reservoir as far as I'm aware>> Go back to my Nilsen reactor? <<Another possibility, though Bob is probably squirming in his seat as he reads this...>> The only reason I originally built it was due to using the calcium reactor with CO2 I did have trouble with low pH. <<Not uncommon...sometimes a matter of striking the right balance between the tank and the reactor.  If backing-off on the reactor is not feasible, adding a second media chamber reportedly helps with using up residual CO2 and raising the pH of the effluent>> I did not have a refugium at that time, I am  hoping one of this size (100 gal) will help, especially with a reverse cycle lighting schedule. <<Should...some...>> I decided to keep my original plan for the refugium and sump (splitting the raw water) and if the flow thru the 'fuge proves not to be enough I'll have to address it later. <<Good enough...though I suspect all will be fine>> I decided to use Chaetomorpha and am hoping that the flow is enough to keep it "tumbling". <Mmm...Anthony would disagree, but in my experience the Chaetomorpha does not need to "tumble."  I have had mine sitting "static" for more than three years with no problems.  Not to say that "tumbling" might not be better...just not a "necessity">> If I needed more flow you suggested a pump in the skimmer side of the sump to the 'fuge. <<Yes...have used this method myself in the past>> The return from the 'fuge should be big enough I used 2" between   the two stock tanks, but given that the sump is divided in two with the skimmer side spilling over to the pump side to maintain a consistent water level for the skimmer, wouldn't that start draining the skimmer side down? <<Only one way to know for sure...but consider this, the flow "in" to the skimmer chamber will also increase>> Would it be  acceptable to just put a small powerhead in the 'fuge? <<Is what I am doing with mine now>> As far as the closed-loop circulation in the display I did not mention that the two Mag-12s will be right under the tank with only a couple of feet of head (I'm not crazy about this for noise reasons but once again I just couldn't bear to put more holes in my floor!). <<Ah, I see>> I'm starting to rethink the canister filter being pumped in a closed-loop fashion from the skimmer side of the sump.  I have read on WWM that you should not use chemical filtration before skimming, and certainly this design would be taking some of the raw water and doing just that. <<True...but a minor concern in my opinion.  Still, you could do this from the pump chamber if it suits you better>> If I pump it from the pump side of the sump would the chemical and mechanical filtration have a negative effect on any plankton trying to reach the display? <<Some will be lost, yes.  I use two chemical reactors in my sump (between the skimmer and pump chambers) and have observed very minimal "plankton" removal.  The benefits of the chemical filtration outweigh any disadvantage re I feel>> What do you think of simply putting a 50 or 100 micron sock with carbon right in the pump side of the sump, sounds too easy but sometimes we think too hard in this hobby. <<Some folks use this "passive" method of chemical filtration...has some benefit, though much less effective in my opinion than "active" methods of pushing the water through the media>> Do you prefer Lugol's iodine or something like Tech-I from Kent? <<I use/prefer a "Lugol's" solution...must be used very carefully/dosed precisely with care given to how/where it is introduced to the system>> Lastly I think I will just get all new live rock, I will need quite a bit between the display and the 'fuge, can you recommend a place that sells quality rock affordable? <<Several hobbyists in my local marine club have been raving lately about the rock they received from Reefer Madness>> You have been a tremendous help and I am much more confident moving forward with my new set-up. <<It has been my pleasure>> My hope is that with roughly 260 gallons supporting a 110 gallon display I should have a very stable environment. <<Will contribute greatly...assuming all other aspects of good husbandry are maintained>> Have a great weekend!  (Go Yankees!!!) John <<And to you in kind.  Eric Russell>>

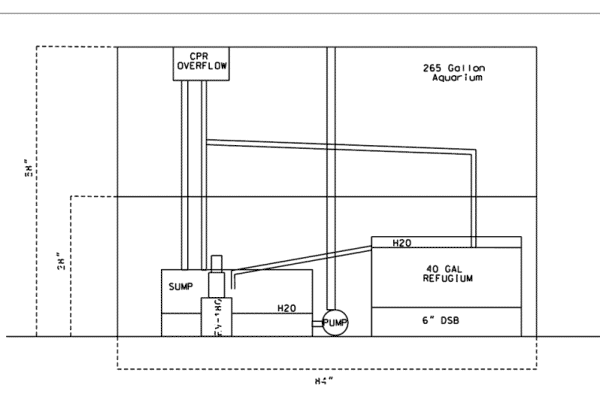
Re: Finicky Sargassum Trigger (Refugium Plumbing) -- 09/28/06 First of all let me say thank you for your help with my triggerfish, the night I received your response he began eating the Mysis shrimp. <<Ah, super!>> He now will eat anything, but I am still trying to find the zooplankton since that is what they are more accustomed to. <<The Mysis are a good 'staple', but varying the diet is always better.  Both the Sweetwater Plankton (saltwater formula) and the New Life Spectrum pellets should be easy to find at many of the on-line vendors>> I now have another question. >>Okay>> I have been struggling keeping my nitrates below 20 ppm and I would like to be able to culture some copepods and things so I have decided to add a refugium after reading all the good reviews on them. <<Indeed...a very worthwhile addition to any system>> I have a 265 gallon tank with a sump and an AquaC EV-180, and about 150 lbs of live rock.  I have a 40 gallon Oceanic Trickle filter I am not using that I wanted to try and convert to a Refugium.   I have attached  a drawing of what I have in mind. <<I see it>> My problem is that I am very restrained by the size of the stand I have and the space that I have. <<A very common tale>> Most people seem to have the space/height to drain from the tank to the 'fuge and then down to a sump.  I will have to have my sump and 'fuge on the same level with only about 2" height difference in the two. <<Could be fine...do ensure there is enough 'empty volume' left to handle the transient water volume when the pumps/power go off>> My plan is to have water flow from the tank to the sump and the 'fuge and then the 'fuge will overflow into the sump and be pumped back to the tank. <<That's how I do mine (375g display, 75g sump, 55g refugium)>> From experimenting in my garage I think I can only put about 150 gph through the 'fuge this way to keep it from overflowing (of course I could have powerheads in the 'fuge for better circulation in there). <<Flow-rate is determined by the size/number of throughputs...but 150 gph through this refugium should do fine>> I thought of adding another overflow and pump, but besides the added cost, I was afraid that would be too many variables (as far as keeping the system from overflowing), but maybe I am wrong. <<All comes down to not spilling more water in to the refugium than you can spill out of it in the same amount of time. I guess my questions are do you think the 150 gph would be enough for my tank to see a real benefit, and looking at the picture can you suggest a better way to get water through the fuge and to the sump. <<An emphatic 'yes!' to the first...and as for the second, I suggest you add a gate-valves to the pump output and to the refugium input to allow for flow adjustments and be able to 'shut-off' the refugium for maintenance.  And if these are 'hard' connections, you may also want to consider installing unions>> Sorry for the length of the email, and thank you in advance for all of your help. Jeremy <<No worries Jeremy, am happy to help.  Regards, EricR>>

Refugium For Quarantine?  9/15/06 Great resourceful site, quick question for the experts. I am going to use an old 55-glass tank as a sump\refugium for my 75-gallon tank. My current design is Skimmer Left, return center, with the refugium on the right utilizing a higher wall. I am channeling aquarium water to both ends to give the refugium fresh tank water. My question is can I occasionally isolate the refugium as a quarantine tank, or should I design another chamber say 5-10 gallons for this purpose. I intend to have LS, LR, etc in the refugium so I'm not sure if leaving this out of the loop for several weeks would be risky. <Hmm...in my opinion, I'd simply set up a small aquarium for this purpose. Get an appropriate-sized aquarium for the livestock that you intend to quarantine (like a 10, 20 or 40 gallon), "pre-colonize" some filter media in your display tank, and set up/break down the quarantine tank when you need it. The potential for introduction of diseases, even in an isolated section of your refugium, is simply not worth the risk, IMO. Besides, if disease does manifest itself and you have to medicate, there is another potential difficulty. Better to isolate a section of your refugium to cultivate amphipods, mysids, or other food sources, IMO! Quarantine in a simple tank set up remotely just for this purpose.> Thanks - Jeff <My pleasure, Jeff...Hope my two cents was of use to you! Regards, Scott F.> 24G Nano Refugium  9/9/06 Hi Guys, <Mixed sexes here...> I will like to create  a refugium on the center compartment at the back of my 24 Gallon Nano. <Good> Option 1: Remove filter and move carbon bag to the first compartment, add a couple of pieces of life rock. No light, no sand, no Chaetomorpha. hopefully this will feed some pods into the main tank... <Hopefully> Option 2: same as option 1 + add a small arm light back there, add rock and Chaetomorpha. <I would go this route> Option 2A: same as option 2 but add sand.... this option is where I don't know what to do.... if I add sand back there it might get into the sponge filters of the first compartment, not sure if this is a problem. should I put it in and open container.... <I'd skip the sand here> are any of the above good ideas...please advice. attached is a picture of my creatures... thanks a lot! Roberto <Mmm, have you read here: http://wetwebmedia.com/refugium.htm and the linked files above? Bob Fenner>

Tiny Refugium in Sump ~ Lighting for Chaeto  9/6/06 Good afternoon all! <And to you> I have a 90 gallon salt tank with a deep sand bed 3 - 6".  I am in the process of preparing the tank for corals... while eliminating some Cyano.  My sump is 33 gallons and the refugium portion is tiny at 12x12 enclosed in 10" baffles and the water level stays fairly constant at about 13".  I'm using approx 1" miracle mud as a base.  My water flow is about 18x/hour, aggressive protein skimming, and 2x250watt MH with 2x96watt PC lighting on the main 90 gallon tank.  I have a ball of Chaetomorpha on order... it arrives tomorrow.  Because my strategy is to use the Chaeto for nutrient export, I will be keeping the refugium lighting on 24/7. <Mmm, don't do this... Only a few algae (not this one) can constantly operate illuminated... need the dark reactions of photosynthesis... I'd arrange a RDP (reverse...) photoperiodicity with your main tank... have them overlap...> My questions is, because my refugium is small... I should only really worry about lighting that portion and therefore do not need a fixture that will cover the entire sump, correct? <Correct> I am looking at a lamp fixture with one 65watt 6500K Power Compact.  In your opinion, is this sufficient? <Yes> I would keep the lamp fairly close to the top of the tank. On a sidenote, my water temperature in the main tank has a low of about 27oc and with metal halides on, rises to 29/30oc.  Is this an acceptable fluctuation for my fish and eventually my corals? <Mmm... no is more than border-line too much diurnally> I'd hate to have to invest in a chiller just to drop my temp 2oc. <Look into other technology... fans, passive cooling methods... covered on WWM> Thanks! "DIE CYANO DIE!"  hopefully.... Dave <Oh, and please read here: http://www.wetwebmedia.com/refugltgfaqs.htm Bob Fenner> Re: refugium   9/5/06 Just wondering if a 20 gallon long tank is ok to use as a sump/refugium for a 58 gallon oceanic tank, Thanks Ron <Oh yes... appreciable benefits. Bob Fenner>

-Wet dry to Refugium-  8/28/06 Hi there; < Evening> New to this site and have been looking into changing my wet/dry over to a refugium. I have a 75 gallon tank with about a 20 gallon sump which houses the bio balls (I know get rid of them) and a protein skimmer. <You do not "have " to remove them, depending on your bioload and maintenance regimen of water changes, a wet dry can be a very good filter, just becomes a nitrate factory and most tanks have that issue as it is :)> I have two options that I am looking at here. Option one is to take a 20 Gallon long tank, have the overflow from the main tank drain into a compartment with live rock, then baffle the tank from there to allow the water to flow into the DSB and fauna area then pump back to the main tank. I am concerned about this method though because I will have to really slow down the return volume to the main tank to allow the water "dwell" time in the fuge. I thought that a slower water turnover back to the main tank would affect the dissolved oxygen level of the main tank and affect the health of my corals, or would this be a mute point because of the "oxygen" added by the fuge to the water? <This method works, and while the flow isn't conducive to tons of copepods and other micro fauna going crazy in the higher flow; It will certainly work.  If you want an all in one option this works, and works well,  Vie seen a rate of flow at 500gph through an 18" long sump setup similar, and it runs my friends reef and puffer tank which both share a sump just fine. Your concern for oxygenation is unfounded as well if your skimmer is decent.  a good skimmer will saturate your return water with oxygen and is one of the best gas exchange areas for its total footprint.> Option two is to keep the current sump in place which houses the wet/dry and add another 10 gallon tank under the stand and make that into the refugium. If I go this route I would split the overflow from the main tank have an open flow to the sump (wet/dry) and a valve on the flow to the refugium so that I can control the water turnover in the fuge. I will run the return of the fuge back to the sump with the wet dry, for return back to the tank. <This is the method described here on WWM, and one that I know works very well, I think if you can make it leak proof and ensure you know the max GPH you plan to use in the refugium is enough to keep the wet dry siphon working if it uses an overflow type box, or a reliable tank driller to cut you an overflow hole in the tank.  It will guarantee your flow is higher through the sump, and can be fine tuned in the refugium.  Use a t inside down, to ensure that your flow isn't totally bypassing your refugium and you should be a very happy aquarist.> I really would like to go with option one but my concern is the rate of water return to the main tank being too slow. Can you please let me know which you think would work best. Thanks for your help and you guys have a great site here. <You do as well, I hope that helped.> <Justin>

Refugium Size/Overflow Surge/Skimmer Adjustment - 08/25/06 Hi Everyone, <<Hello Diana!>> I just installed a Refugium (it is 36"x18"x13" with the refugium being 15"x13" does that seem big enough for my tank?) on my 150 Gallon reef tank. <<Whether this is "big enough" is a question that can't really be answered...bigger the better as you are probably aware.  But the fact it is there "will" provide benefit to your system>> I have two pumps in my return (one for returning water straight back to the tank the other goes thru the chiller and UV light). Now here is my problem.......When I have both pumps running the overflow on one side of the tank is putting out air thru the hose back into the skimmer area. <<Is having problems handling the volume...efficiently>> It seems like the overflow pipe is filling up to fast with water and the air hole in the overflow pipe can't keep up so it creates suction.  Does this make sense? <<Sorta <grin>.  What's happening is the volume of water traveling through the pipe with both pumps running is trapping/preventing the air in the pipe from escaping efficiently.  This are is then pushed to the sump (the bubbles you see being created there) and/or building to the point that it surges back up the overflow pipe (intermittent rushing/flushing sounds)>> My question is how it comes that it only does it on one side and when both pumps are running (I guess I answered that one already since it is putting more water into the tank with both pumps on). <<Indeed>> Now my main question would be how I can fix this problem?  Any help would be appreciated as I would like to get my water flow going again and make my fishies and corals happy. <<The easiest solution would be to install gate-valves on the "output" side of the pumps and temper the flow down to what the overflow can quietly and efficiently handle.  Another approach is to "aspirate" the return line by inserting a length of small diameter tubing (exact diameter and length of insertion will require experimentation do determine optimum performance) to help with the escape of entrained air from the line.  This method will usually yield some improvement to water flow but is no panacea on its own and will probably work best if employed with the addition of the gate-valves as mentioned previously>> One other quick question, if you don't mind. <<Not at all...>> I just hooked up an ASM G2 Skimmer in my refugium and I was wondering if there is any hints on how to get it working just right (as of now I'm only getting greenish water)? <<Simple adjustment of the riser-pipe will change the concentration of the skimmate.  If the skimmate is too thin for your liking, adjusting the riser-pipe "down" will lower the water level in the skimmer body yielding a thicker skimmate... you will likely have to "play" with the adjustment a bit to find the desired height/skimmate production>> Thank You, Diana <<Quite welcome.  EricR>>  

Tank Photos, Refugium design mostly   8/24/06 Good morning, <Mmmm, maybe> I've waited to through <waded through?> two books and your website on proper sump and refugium setup.  I've come to two answers...  either a) sump and refugium isn't really all that complicated <They're not, or at least don't have to be>    and/or  b) too many 'professionals' have too specific opinion on what will work.  (Not you of course Bob... more in reference to your buddies over at EcoSystems). <Heeee!> I've attached photos of my tank and sump setup.  I have about a 4yr old 90 gallon tank which I just moved about 4 months ago.  During the move, added some more liverock and added a deeper sandbed.  The sandbed in the main tank ranges from 3" - 6".  I'm still battling a little bit of Cyano.  I circled the two small trouble spots on the tank photos.  As well, I'm getting a kinda nasty looking green hair algae in some spots. Anyhow, I wanted the refugium to grow some of that Chaeto-something-or-other.  You know, the algae that doesn't have the downside that Caulerpa would have when the lights are off? <Oh yeah, oh heck yeah> My Miracle Mud Bed in my refugium is about 12.5" x 12.5" and 1" deep.  The guys are EcoSystems recommend the 1" deep mud bed... but are also telling me that I MUST keep my tanked to less than an inch as well. <One approach>   Here's where the frustration lies.  I visit ReefCentral and ReefKeeper websites all the time and see beautiful tanks with deep sandbeds and refugiums with mud beds similar to what I've setup... and these EcoSystem guys tell me that with my deep tank sandbed I am going to get some sort of mass tank crash because of all the nitrates trapped. <Mmm, possible, but not likely> Arrrgh!     From reading your book, the one tip that I have picked up is that perhaps I should add an eggcrate layer horizontally with a filter-foam pad (prefiltre) directly under my water inflow... to filter before the water hits my liverock. Agreed?? <Another approach... not necessarily the only...>   As well, I know you recommend 10" baffles for the refugium... <Really?> mine came with 8" walls.  Should this be ok?  Is there a beneficial water level to keep my sump at? <Actually... whatever works for the given size, set-up...> Aside from that, my QuietOne4000HH pump sends water to my tank at about 800GPH.  I also have two MaxiJet 1200's and one 900.  Lastly, I have used my Aqua Remora-C Pro protein skimmer with the Mag3 Pump sitting on top of the foam filter pad chamber directly before water flow enters the refugium.  I think the protein skimmer is awesome... getting 3-4 full cups a week... but I have been having some issues with my Mag3 Pump.  Not sure if it's an isolated case... but the pump will just shut off on me. <Not good>   I keep taking it apart and cleaning inside... then it works for a couple of weeks... then same thing over. <I would not trust this unit> Anyhow, from the pictures and diagram... do you think I am on my way to having a properly run sump / refugium setup to start transitioning to a reef tank? <Looks fine to me>   I will be upgrading my lighting to metal halides. I figure this email and my questions would thoroughly answer my ponderings from the last two months.  Hope the pictures and pdf diagram work. Dave <Mmm, please take a (re)read here: http://www.wetwebmedia.com/refugium.htm and the linked files above. Bob Fenner>



Become a Sponsor Features:
Daily FAQs FW Daily FAQs SW Pix of the Day FW Pix of the Day New On WWM
Helpful Links Hobbyist Forum Calendars Admin Index Cover Images
Featured Sponsors: